Barnhouse Builder in Colorado | A-Hut
Rustic Style, Modern Comfort
At A-Hut, we design and build barnhouses that combine the charm of classic barn architecture with the comfort of modern living. Whether you’re dreaming of a family home, a rental property, or a multi-use retreat, our barnhouses are engineered for Colorado’s snow, wind, and mountain conditions—and customized to your lifestyle.
Specifications:
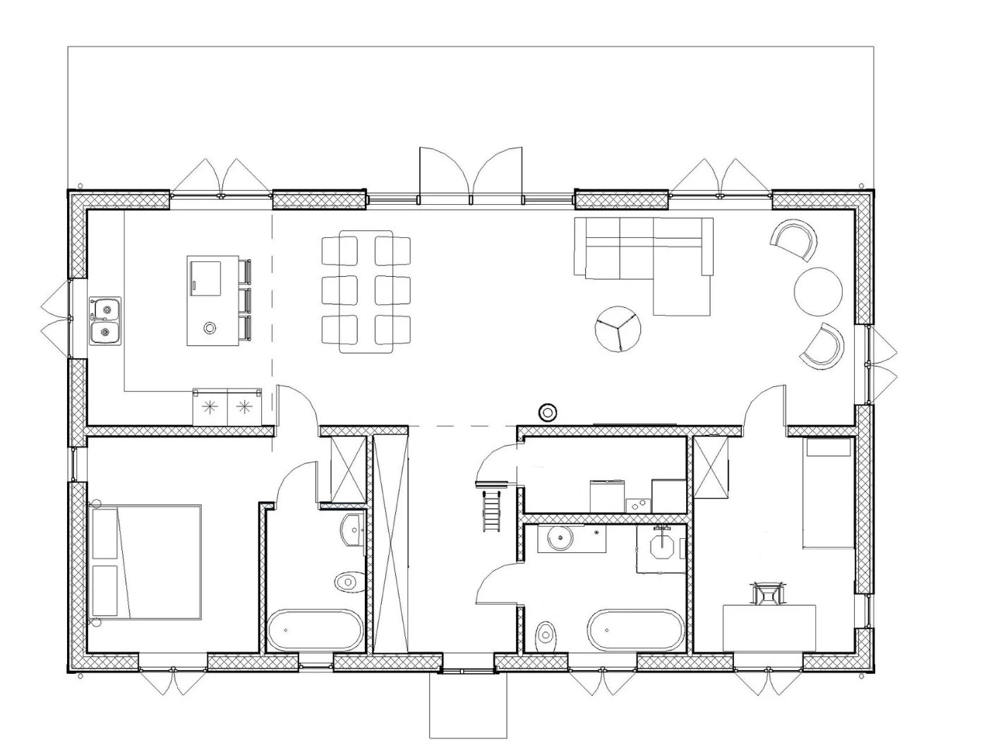
Total area 3150 sq ft
House size 78 ft x 41 ft
Number of bedrooms 2
Number of bathrooms 1
Deck – Upon request



Why Choose a Barnhouse?
- Spacious Layouts: Open floor plans with vaulted ceilings for a bright, airy feel.
- Flexible Uses: Ideal as a family residence, guest house, event space, or vacation rental.
- Rustic + Modern Design: Timber, metal, and natural finishes meet energy-efficient insulation and smart systems.
- Strong ROI: Barnhouses are in demand for both short-term rentals and resale value.
Our Design-Build Process
A-Hut makes barnhouse construction simple and stress-free. We handle everything from first sketch to final inspection.
- Site & Feasibility Review – Access, soils, utilities, snow/wind loads.
- Concept Design – Floorplans and 3D renderings that blend rustic and modern.
- Engineering & Permitting – Stamped plans tailored to county requirements.
- Foundation & Utilities – Piers, slabs, or basements; septic/well or tie-ins.
- Build & Weather-Tight Shell – Framing, roofing, siding, windows, insulation.
- Finishes & Details – Kitchens, baths, stairs, lofts, decks, and inspections.
Built for Colorado’s Climate
Barnhouses from A-Hut are not just farm-style shells. They’re engineered for high snow loads, alpine winds, and seasonal temperature swings. We use:
✔ Standing-seam metal roofing for snow & ice management
✔ Structural framing rated for Colorado building codes
✔ High-R insulation for energy efficiency at altitude
✔ Durable siding (wood, metal, composite) for long life
Popular Barnhouse Features
- Vaulted great rooms with exposed beams
- Loft bedrooms and mezzanines
- Wrap-around porches and decks
- Large glass walls for mountain views
- Open-concept kitchens with island seating
- Optional attached garage or workshop
- Energy-efficient heating, cooling & solar options
Sizes & Styles
- Compact Barnhomes (800–1,200 sq. ft.): Perfect for cabins or STR rentals.
- Mid-Size Barnhouses (1,500–2,500 sq. ft.): Spacious family homes.
- Large Barnhouse Estates (3,000+ sq. ft.): Multi-bedroom layouts with flex rooms and garages.
Custom vs. Kit Barnhouses
Unlike prefabricated kits that require you to manage foundation, utilities, and permits, A-Hut delivers a complete barnhouse build. You get one accountable team from concept to move-in, with full customization and no hidden site costs.
Typical Costs & Timelines
- Design & Permitting: Varies by size and county.
- Construction: Starting around $150–$200 per sq. ft., depending on finishes.
- Timeline: 6–10 months from permit approval to completion.
(Exact pricing depends on site, access, and finishes—request a custom estimate.)
Service Areas
We build barnhouses across Colorado, including Denver Metro, Boulder, Fort Collins, Colorado Springs, and mountain counties such as Park, Summit, Teller, Clear Creek, Gilpin, Grand, and Larimer.
Frequently Asked Questions
Do barnhouses need special permits?
No—barnhouses are permitted as single-family residences, but counties may require engineered plans for snow and wind loads. A-Hut manages all permitting.
Can I use a barnhouse as a rental?
Yes. Many clients build barnhouses as Airbnb/VRBO rentals, and we can help design for STR zoning compliance.
Can you add a loft or workshop?
Absolutely. Barnhouses are flexible—workshops, garages, or lofts can be incorporated into the design.
Are barnhouses energy-efficient?
Yes. With modern insulation, efficient windows, and optional solar systems, your barnhouse can perform as well as (or better than) traditional homes.

