A-HUT 800 sq ft – Starting at $128,999
This base price reflects the construction of a frame house in standard configuration, including a weatherproof shell (warm contour) on a screw-pile foundation. Exclusions: Connection to external utilities (electrical, water supply, sewerage) is not included and will be priced separately based on site-specific conditions.
Please note: Final costs may vary slightly due to fluctuations in material prices. A detailed estimate will be provided after we have evaluated your project requirements.
The house layout can be changed at the customer’s request
Specifications:
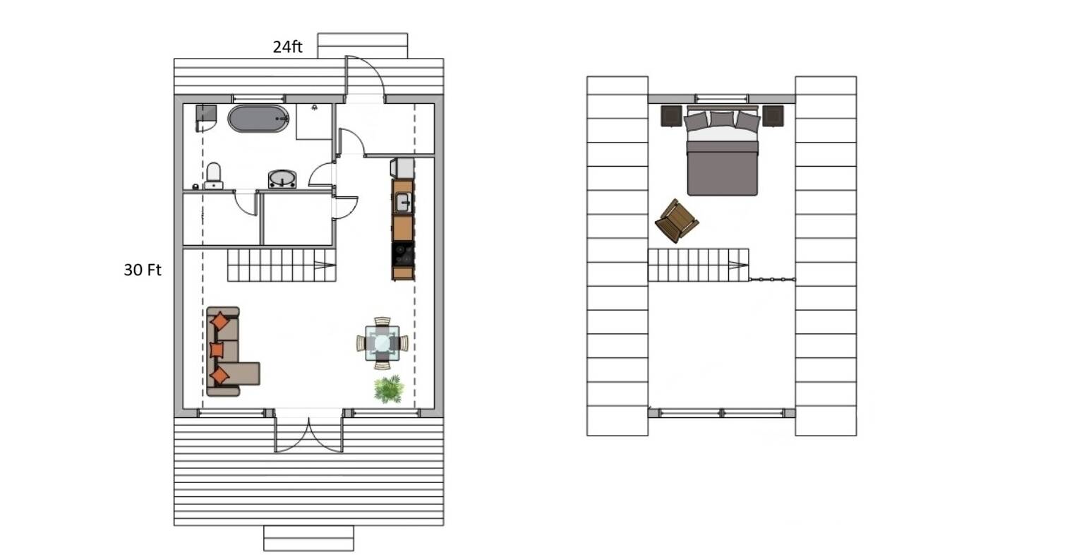
Total area 800 sq ft
House dimensions: 24 ft x30 ft
Height of the 1st floor 8.2 ft
Height of the 2nd floor 8 ft
Number of bedrooms 1
Number of bathrooms 1
Terrace 200 sq ft (option)


LAYOUT A-HOUSE 800

A-Frame Cabin Builder in Colorado | A-Hut
When developing the layout, we carefully thought through every square meter to make the space as functional as possible. But if you’d like your home to have a unique character — a layout designed exclusively for you — let us know. We will create a personalized project that brings to life the house of your dreams.
Build Your Dream A-Frame Cabin in the Rockies
At A-Hut, we specialize in designing and building Colorado-ready A-frame cabins that are engineered for heavy snow loads, mountain winds, and challenging soils. Whether you’re planning a weekend retreat, a full-time mountain home, or a short-term rental investment, we deliver permit-ready, custom cabins built to last in Colorado’s high-altitude environment.
Why Choose an A-Frame in Colorado?
- Snow-friendly design: Steep rooflines shed snow efficiently.
- Compact & efficient: Fits mountain parcels with difficult terrain.
- Energy-conscious: South-facing glass walls capture sun and views.
- High ROI: Perfect for short-term rentals or personal retreats.
Our Design-Build Process
A-Hut is a one-stop partner for your mountain build. From feasibility studies to handing over the keys, we handle everything in-house.
- Site Review & Feasibility – We evaluate parcel access, soils, snow/wind loads, and utilities.
- Custom Design – 3D renderings (front, back, and 30° perspectives) tailored to your lifestyle.
- Engineering & Permits – Stamped plans and permit management for your specific county.
- Foundation & Utilities – Piers, sonotubes, or frost-protected slabs; well, septic, or tie-ins.
- Construction & Weather-Tight Shell – Rapid framing, roofing, windows, insulation, and sealing.
- Interior & Finish – Flooring, kitchens, baths, decks, rails, and inspections to Certificate of Occupancy.
Built for Colorado Codes, Snow & Wind
Colorado counties adopt IRC with local amendments, and mountain zones often require structural design for high snow loads. A-Hut designs every cabin for parcel-specific conditions—accounting for snow drifts, wind exposure, and deck load requirements.
Counties we serve regularly:
Park • Summit • Teller • Clear Creek • Jefferson (foothills) • Gilpin • Grand • Larimer • Boulder mountain fringe
When developing the layout, we carefully thought through every square meter to make the space as functional as possible. But if you’d like your home to have a unique character — a layout designed exclusively for you — let us know. We will create a personalized project that brings to life the house of your dreams.
A-Frame Cabin Builder in Colorado | A-Hut
Build Your Dream A-Frame Cabin in the Rockies
At A-Hut, we specialize in designing and building Colorado-ready A-frame cabins that are engineered for heavy snow loads, mountain winds, and challenging soils. Whether you’re planning a weekend retreat, a full-time mountain home, or a short-term rental investment, we deliver permit-ready, custom cabins built to last in Colorado’s high-altitude environment.
Why Choose an A-Frame in Colorado?
- Snow-friendly design: Steep rooflines shed snow efficiently.
- Compact & efficient: Fits mountain parcels with difficult terrain.
- Energy-conscious: South-facing glass walls capture sun and views.
- High ROI: Perfect for short-term rentals or personal retreats.
Our Design-Build Process
A-Hut is a one-stop partner for your mountain build. From feasibility studies to handing over the keys, we handle everything in-house.
- Site Review & Feasibility – We evaluate parcel access, soils, snow/wind loads, and utilities.
- Custom Design – 3D renderings (front, back, and 30° perspectives) tailored to your lifestyle.
- Engineering & Permits – Stamped plans and permit management for your specific county.
- Foundation & Utilities – Piers, sonotubes, or frost-protected slabs; well, septic, or tie-ins.
- Construction & Weather-Tight Shell – Rapid framing, roofing, windows, insulation, and sealing.
- Interior & Finish – Flooring, kitchens, baths, decks, rails, and inspections to Certificate of Occupancy.
Built for Colorado Codes, Sn
Custom vs. Kit — Why A-Hut is Different
- Prefab kits: Quick shells, but still require foundation, utilities, engineering, and permits.
- A-Hut custom builds: Tailored to your parcel, budget, and goals—with full site prep, utilities, finishes, and compliance handled by one accountable team.
Typical Pricing & Timelines
- Design + Permit Set: Based on size and county requirements.
- Construction: Driven by access, size, finishes, and site conditions.
- Timeline: Most projects are completed in phases to get weather-tight quickly, then finish interiors.
(Contact us for a free parcel review and project estimate.)
Options Our Clients Love
- South-facing glass walls with high-altitude glazing
- Standing-seam metal roofing for snow & ice management
- Solar + battery systems for off-grid living
- Wrap-around decks, engineered for mountain snow
- Loft bedrooms, bunk walls, and gear storage
Service Areas
We build A-frame cabins across Colorado, including:
Evergreen • Conifer • Bailey • Fairplay • Alma • Breckenridge • Silverthorne • Idaho Springs • Georgetown • Nederland • Estes Park • Granby • Winter Park • Woodland Park • Divide • Colorado Springs North
Frequently Asked Questions
Do I need a permit for an A-frame cabin?
Yes. Every county requires building permits. A-Hut manages the entire permit process so you don’t have to.
How do you design for snow loads?
We engineer each cabin for site-specific snow and wind loads. Roof pitch, structure, and decks are designed to exceed local code.
Can I build off-grid?
Absolutely. We design and install solar systems, water catchment, septic, and off-grid heating solutions.
How long does it take to build an A-frame cabin?
On average, 6–9 months from permit approval to completion, depending on site access and finish level.
This base price reflects the construction of a frame house in standard configuration, including a weatherproof shell (warm contour) on a screw-pile foundation. Exclusions: Connection to external utilities (electrical, water supply, sewerage) is not included and will be priced separately based on site-specific conditions.
